Countryrealescape

powered by Open2view.com
SOLD

Adelaide
5
2
N/A
N/Asqm
N/Asqm
Adelaide
proudly marketed by
Smallacombe Real Estate Burnside
ROOM TO MOVE FOR ALL THE FAMILY!
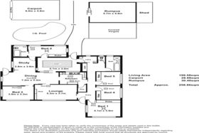
ROOM TO MOVE FOR ALL THE FAMILY! A wonderful solid brick family home, located opposite Richardson Park and Third Creek Walking Trail. A short walk to K Mart shopping centre and a host of other shops. Transport on Glynburn Road just a few minutes away. From the entrance hall we enter a lounge room with parquetry flooring and a gas heater; then through to a very extensive dining room with a study area nearby. Five bedrooms and two bathrooms will accommodate a large family. The kitchen overlooks a light and bright sunroom that would make an excellent childrens playroom or just a pleasant area to relax. The home has ducted evaporative cooling. Outside is a freestanding room that would respond to some upgrading. It would be suitable as a home office or perhaps a teenagers retreat. There is an undercover brick paved entertaining area adjacent. The sparkling in-ground swimming pool will provide endless enjoyment for the family. There is a double carport with entry from the side street.
Question
Upload by Erin Beare
Burnside-Norwood