Countryrealescape

powered by Open2view.com
SOLD

Sydney
2
1
N/A
N/Asqm
N/Asqm
Sydney
proudly marketed by
Marshall SA
Fantastic Location - Extend and Renovate - Demolish
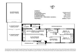
Renovate and extend or demolish and explore your options including development (STCC). Situated on a lovely wide allotment with a 21m frontage and total area of 595 sqm (approx) the choice is yours. Would also suit first home buyers. Currently offering 2 bedrooms, the main with built ins, newly renovated bathroom, large kitchen and meals area and formal lounge and dining. Plenty of undercover car parking and a huge garage/workshop. Close to transport, Linear Park, shops and the O'Bahn. This one owner home is just waiting for a new start. Make the effort to inspect this one. For definite sale at auction!
Question
Upload by Charles Lynch - Eastern Adelaide & Adelaide Hills
Eastern Adelaide & Adelaide Hills
This property was photographed by
Charles Lynch - Eastern Adelaide & Adelaide Hills
0418 213 909