Countryrealescape

powered by Open2view.com
SOLD

Adelaide
3
2
N/A
N/Asqm
N/Asqm
Adelaide
proudly marketed by
Marshall SA
Queen Victoria Apartments
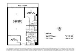
Delightful first floor luxury apartment with a desirable northerly aspect & situated in this tightly held and mostly owner occupied Queen Victoria Apartment complex. Offering lifestyle, security and privacy this property is much larger than your typical new apartment being built and on the market today. Currently disposed as 2 bedrooms plus a study, the main bedroom has an en-suite and built-in robes, deluxe kitchen with granite bench tops and Smeg appliances, second bathroom, full sized laundry, timber floor boards, double lock up garage, separate store room, on site gym and Bistro. Located directly opposite picturesque Victoria Park and within walking distance of the City, Hutt Street and Norwood Parade both with their trendy shops & cafes. LOW MAINTENANCE LUXURY LIVING Council Rates: City of Burnside - $1240 pa Strata/Community Fees: $1177 pq (including Sinking Fund contribution) Emergency Services Levy: $313 pa SA Water: $208 pq
Question
Upload by Charles Lynch - Eastern Adelaide & Adelaide Hills
Eastern Adelaide & Adelaide Hills
This property was photographed by
Charles Lynch - Eastern Adelaide & Adelaide Hills
0418 213 909